La division immobilière : avantages & contraintes, mise en place…
/
Accueil » Conseils » La division immobilière : avantages & contraintes, mise en place…
Les préconisations ci-dessous sont uniquement le fruit de l’expérience de l’auteur de ces lignes et de son équipe depuis la création d’Adequade, spécialiste de l’investissement locatif depuis 2014 : 67 divisions en 2, 11 divisions en 3, 1 division en 4 (octobre 2022).
Elles ne sauraient remplacer l’expertise d’un avocat ou d’un notaire et ne sont exposées qu’à titre informatif, pour que chaque investisseur qui lit ces lignes fasse sa propre synthèse.
Les divisions évoquées ci-dessous sont des divisions d’appartements (et non de maisons), dans des copropriétés de Lyon, Villeurbanne ou Caluire.
Qu’est-ce qu’une division immobilière ?
Une division consiste à partager 1 appartement en 2 appartements plus petits, généralement des studios ou des T2. Si l’appartement est de taille suffisante, il peut être divisé en 3, en 4…
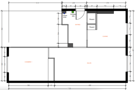
Concrètement, il s’agit par exemple de passer de cet appartement de 56 m2 à 1 grand studio avec coin nuit et 1 T2 avec une chambre séparée, avec un sas de 3 m2, tel que ci-dessous :
Si on prend un exemple de division en 3, il s’agit de transformer cet appartement de 61 m2 en 3 studios :
Les règles légales pour diviser un bien immobilier
Il y a 3 règles légales fondamentales à respecter pour réaliser une division :
Il ne faut pas toucher aux murs porteurs, parce que : > Ce sont des parties communes sur lesquelles il faudrait un accord de la copropriété avant une intervention ; > Y toucher pourrait avoir un impact sur la solidité de l’immeuble (par définition, le mur porteur porte !).
Il ne faut pas toucher aux parties communes, parce qu’il faudrait pour cela un accord de la copropriété qui prendrait trop de temps ;
Il ne faut pas porter atteinte à la « destination » de l’immeuble, notion qui recouvre son usage habituel (habitation, commercial, professionnel…) ainsi que son standing. Réaliser par exemple 4 studios de 16 m2, si beaux soient-ils, dans un hôtel particulier ne comprenant que des appartements bourgeois de 300 m2, présenterait un risque non négligeable en cas de litige.
Les avantages de la division immobilière
La rentabilité est plus élevéequ’un projet de studio par exemple. Schématiquement, le prix au m2 d’un 50 m2 est en effet plus bas que le prix au m2 de 2 studios de 25 m2.
Il y a création de valeur potentielle, sous réserve de réaliser la division officielle (nous reviendrons sur cette notion). Schématiquement toujours, 2 studios de 25 m2 valent plus qu’un appartement de 50 m2.
La réduction du risque de vacance locative : si le studio de gauche est inoccupé quelques jours entre 2 baux, le studio de droite est toujours occupé et le loyer perçu ! Ce risque reste marginal si le gestionnaire est compétent donc réactif pour trouver des nouveaux locataires.
Les contraintes de la division immobilière
Il faut être patient pour trouver l’appartement adéquat : idéalement, il faut qu’il soit traversant, avec des fenêtres de taille normale de chaque côté, que l’entrée se fasse par le milieu (« quand je rentre, j’ai 50% de l’appartement à ma gauche, 50% à ma droite »), qu’il n’y ait pas trop de murs porteurs et que la colonne des eaux-vannes (celle des WC) ne soit pas trop excentrée. Cela fait quelques contraintes, mais on parle ici d’un monde idéal, un maître d’œuvre expérimenté pourra s’adapter dans la mesure du possible !
Ce projet demande de lire attentivement le règlement de copropriété pour vérifier qu’une mention soumise à interprétation ne puisse pas être opposée par un copropriétaire mal embouché. En région lyonnaise, ces mentions sont très rares mais cela arrive.
Voici un exemple d’article de règlement de copropriété au sujet de « l’usage des parties privées » (il sent bon la machine à écrire des années 50) :
Dans cet exemple classique qui revient dans 90% des cas, le règlement de copropriété n’interdit donc pas les divisions.
Autre contrainte, la division implique potentiellement par la suite une division officielle qui demande du temps, donc de la patience et un budget de l’ordre de 5 000 € qui comprend l’installation d’un nouveau compteur électrique, d’un nouveau compteur d’eau, les honoraires du géomètre et du notaire (voir plus loin).
Les aspects techniques de la division immobilière
Le point fondamental qu’il faut regarder en premier, c’est la disposition de la colonne des eaux-vannes : où est-elle placée ? Le tuyau est-il directement relié au sol ou va-t-il dans le mur ?
La puissance disponible est également un point critique. A titre d’information, en cas d’un seul compteur pour 2 studios, nous comptons chez Adequade sur 9 kW pour 2 studios. Si la colonne électrique est très ancienne et nous limite à 6 kW, il faut absolument compléter avec du gaz pour la cuisson et/ou le chauffage. Si la colonne électrique est très ancienne et qu’il n’y a pas de gaz dans l’immeuble, il ne faut pas faire de division !
L’isolation phonique entre les 2 lots doit faire l’objet d’un soin tout particulier : il ne s’agit pas de poser un simple BA13 entre les 2 studios, il faut installer des isolants adaptés tels qu’un maître d’œuvre qualifié le conseillera. Dans le sas, il faut bien penser à installer des joints autour des portes et tout mettre en œuvre pour que celui-ci résonne le moins possible
Il est impératif de conserver la porte palière de l’appartement, commune aux 2 futurs lots : il s’agit d’une partie commune de copropriété d’une part, et c’est une sécurité appréciée des locataires d’autre part
Division officielle, non officielle, qu’est-ce que c’est ?
La division d’un appartement recouvre 2 notions :
La division non-officielle, que nous appelons division technique chez Adequade. Très schématiquement, c’est le fait d’installer un mur qui sépare l’appartement en 2, de créer un sas de distribution. Il y a 2 studios, 2 locataires différents, mais en l’état, l’appartement reste un seul lot au regard de la copropriété.
La division officielle, que nous appelons division administrative chez Adequade. Il s’agit ici de réaliser les démarches pour créer 3 lots de copropriété (lot de gauche, lot de droite, petit sas)
Comment s’y prendre pour réaliser une division officielle. ?
Prendre connaissance de la date habituelle de l’Assemblée Générale (AG) de la copropriété. Le temps qui reste jusqu’à cette AG définit le tempo de la division
Faire intervenir un géomètre pour mesurer les 3 futurs lots et rédiger le projet qui sera soumis en AG (incluant plans avant/après, mesures précises)
Faire valider en AG la création de ces nouveaux lots
Réaliser les travaux éventuels d’« individualisation » des lots (compteur électrique, compteur d’eau, boitier Internet, interphone, boite aux lettres)
Faire réaliser par le notaire le nouvel état descriptif de division de la copropriété (dit « EDD ») et le modificatif du règlement de copropriété.
C’est fait, l’ancien lot unique n’existe plus, il s’agit maintenant de 3 lots. Il faut noter qu’une division officielle n’est pas très compliquée et ne prend pas beaucoup de temps effectif, ce sont les délais des tiers qui sont importants (AG de copropriété, Enedis pour l’électricité, les artisans pour la réalisation d’un nouvel interphone ou d’une boite aux lettres) et qu’il faut avoir en tête. C’est de la gestion de projet !
Il est par ailleurs important de noter que le bon sens et la courtoisie doit toujours primer dans la relation avec la copropriété notamment. Ce n’est pas parce qu’un investisseur est dans son droit de réaliser une division qu’il doit faire l’économie d’un projet bien présenté, et de pédagogie ! Cela permettra d’éviter des frictions et des oppositions « pour le principe » dont les AG ont parfois le secret…